Whitianga Extension. Coromandel Peninsula, New Zealand

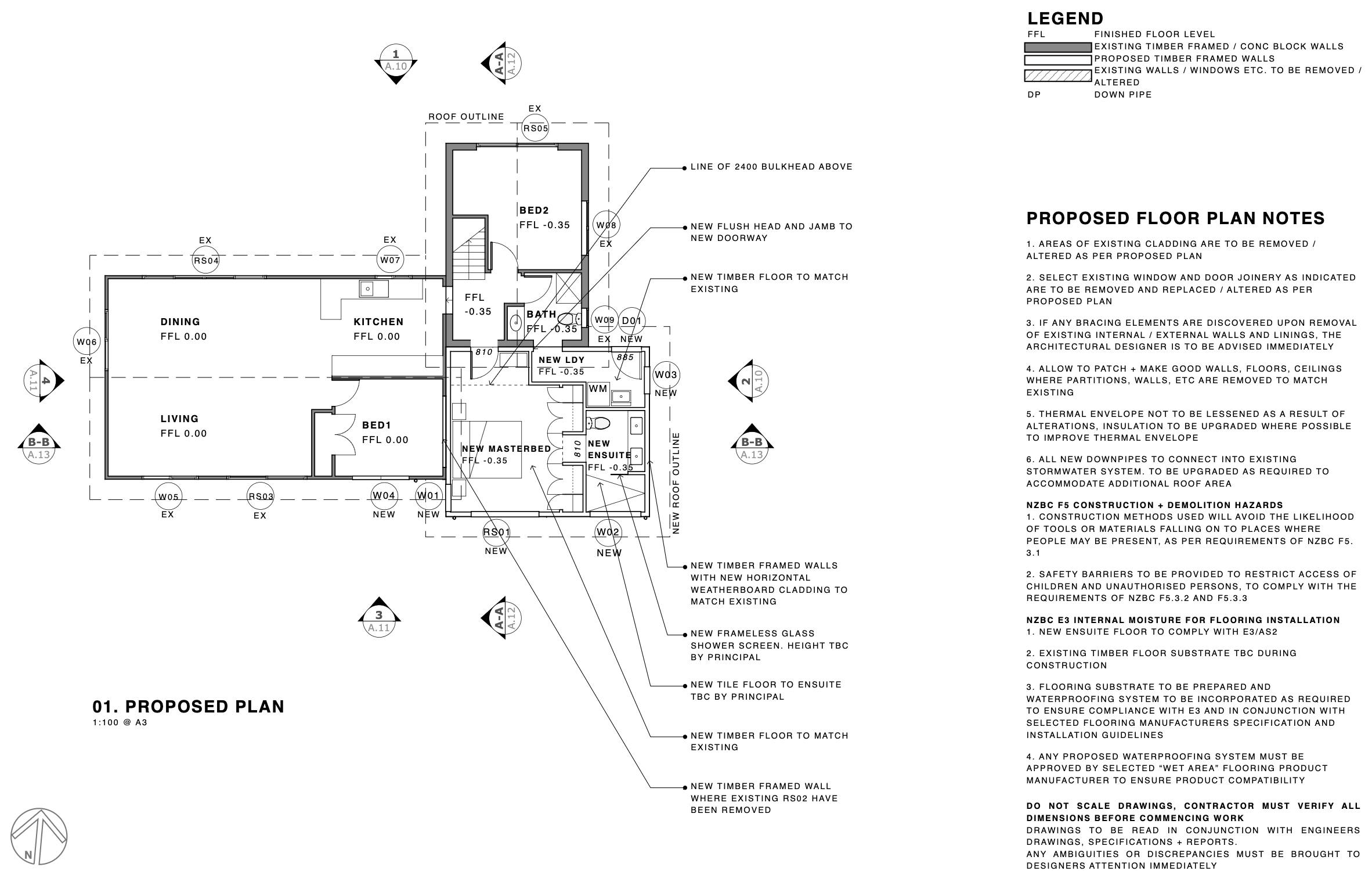
Our client required a ground floor master bedroom, ensuite and laundry addition to their existing two story home. After fully understanding the existing building and the clients needs, we developed a return design brief capturing each of the project components. Concept visualisations allowed the client and builder to collaborate on the form and construction methods which was then developed, detailed and documented for Thames Coromandel District Council building consent.