Mamacino Cafe. Sydney. Australia.

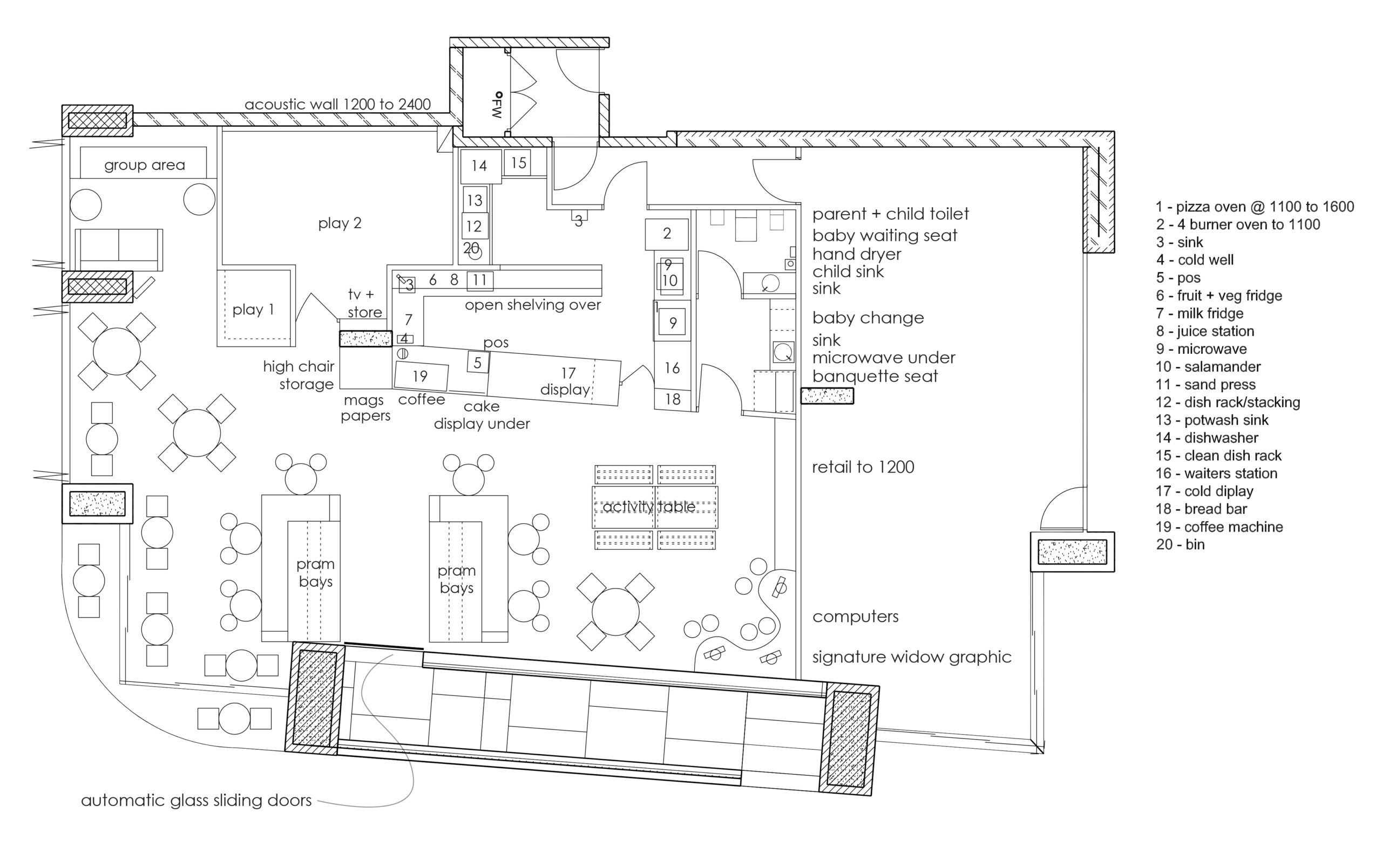
Located in the affluent suburb of Noth Rose Bay, this cafe concept was developed for mothers, their families and friends. The interior design includes pram parking, a playground, games, workstations, a nursing room, and a retail section for parenting essentials. Anchored by a full commercial kitchen and 50+ seat cafe floor area, stencilled polished concrete provides a durable floor and natural timber ceiling pontoons differentiate the point of sale, retail and playground from the general seating areas. Sophisticated graphics, colours and finishes were selected based on modern child psychology philosophies which drove the simple clean branding.