Coco Beauté. Bondi, Sydney. Australia.

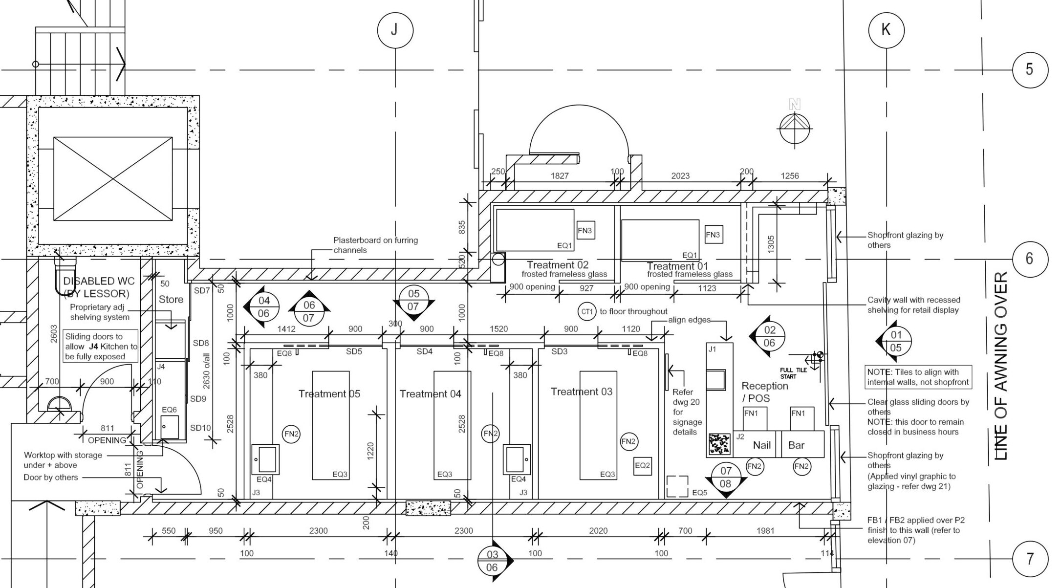
Positioned in the heart of Bondi’s commercial district, this five treatment room beautician studio is carefully laid out to optimise the earning potential of the 50 square metre tenancy. Also accomodating a two seat nail bar, retail display, reception/POS and storage, several clients can be treated simultaneously while the reception and retail functions continue independently. Contracted to complete the branding and interior design, a “disco chic” concept was proposed with an elegant colour pallet that instantly won the heart of the client, and the target market when completed. Quickly attracting and building relationships the local modelling agency cluster, Coco Beauté became a very successful beautician in Bondi Junction.

Beautician shop front perspective design
beautician branding and design
Beautician layout